Používame cookies

Súbory cookie a ďalšie technológie sledovania používame na zlepšenie vášho zážitku z prehliadania našich webových stránok, na to, aby sme vám zobrazovali prispôsobený obsah a cielené reklamy, na analýzu návštevnosti našich webových stránok a na pochopenie toho, odkiaľ naši návštevníci prichádzajú. Viac info

 

ZOBOR-LUPKA na predaj investičné stavebné pozemky

Ulica: Lupka
Mestská časť: Zobor
Obec: Nitra
Okres: Nitra
Kraj: Nitriansky kraj
Druh: Pozemky
Typ: Predaj
Typ pozemku: Iný pozemok vhodný na výstavbu
75 €/m2
dohodou

Popis nehnuteľnosti

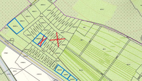
Ponúkame na predaj v k.ú Zobor (Lupka) investičné pozemky určené na základe ÚPI (priložené vo fotkách) ako budúce stavebné pozemky určené na IBV.

Táto lokalita pod Lupkou (priamo pod vodným zdrojom Lupka) bola vytvorená ako ucelený celok viacerých parciel a budúcich navrhnutých komunikácii s predpokladaným napojením na novovybudovanú  Prvosienkovú ulicu s napojením na mimoúrovňovú križovatku na R1 a Mesto Nitra.

V ponuke máme viacero parciel od viacerých majiteľov.

rozmery pozemkov v ponuke: 

4809/14 – 1603 m2

4809/34 - 760 m2

4809/35  - 445 m2

4805/62 – 603 m2

4805/60  - 477 m2

4805/61 -  551 m2

Na priloženej katastrálnej mape si viete pozrieť, kde sa tieto pozemky presne nachádzajú.

V prípade záujmu nás kontaktuje rhinvest@rhinvest.sk alebo telefonicky 0905 552 101 alebo priamo v kancelárii na Ďurkovej 23, sídlo RH-Invest s.r.o.

Ceny od 33 375 € za výmeru 445 m2.

link na vydané ÚPI v NR: https://mapy-nitra.maps.arcgis.com/apps/webappviewer/index.html?id=b198b6d526f2486aabcd333cb3d47e8a

 

 

 

Vlastnosti

Status:
aktívne
Vlastníctvo:
osobné
Plocha pozemku:
445 m2
Typ zeme:
svahovitá
Teritórium:
Extravilán
Celková plocha:
445 m2
Inžinierske siete:
áno
Status:
aktívne
Vlastníctvo:
osobné
Plocha pozemku:
445 m2
Typ zeme:
svahovitá
Teritórium:
Extravilán
Celková plocha:
445 m2
Inžinierske siete:
áno

Pozrieť na mape

Maklér

Ing.Roman Hrivňák

Ing.Roman Hrivňák

Konateľ

  • Slovensky
  • Česky
  • English

Radi Vám poradíme

Podobné nehnuteľnosti